Альфа 3

Альфа 3 109,61 м²
Характеристики
  • Общая площадь: 109,61 м2
  • Площадь застройки: 123,85 м2
  • 2
    Санузла
  • 3
    Спальни

Выберите технологию

Выберите комплектацию

8019800 руб.
8619800 руб.
Цена
8 019 800 руб.
Цены в вашем регионе могут отличаться от представленных на сайте

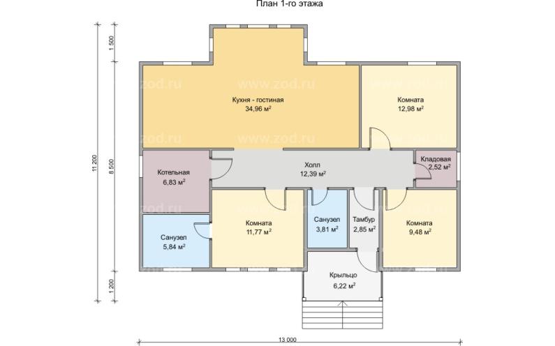
Одноэтажный дом – выбор для тех, кто не хочет подниматься и спускаться по лестницам. Когда все помещения расположены на одном уровне, это удобно для семей, где есть маленькие дети, пожилые люди. Альфа 3 привлекает выразительной внешностью и удобной планировкой. В доме предусмотрено все для комфортного проживания большой семьи: три изолированные друг от друга спальни, гарантирующие покой домочадцам, две ванных комнаты, котельная, в которой можно без труда разместить прачечную, а также кладовая – залог порядка в доме. Огромная совмещенная со столовой гостиная, которая благодаря большому количеству окон всегда будет наполнена светом, станет излюбленным местом сбора всей семьи.

Характеристики
  • Общая площадь: 109,61 м2
  • Площадь застройки: 123,85 м2
4 сезона
4 сезона +
Фундамент в подарок Свайно-винтовой на глубину промерзания Фундамент в подарок Свайный забивной железобетонный ниже глубины промерзания
Пол 1-го этажа Настил пола - 24 мм. Утепление - 150 мм Пол 1-го этажа Доска - 35 мм. Утепление - 150 мм
Стены 1-го этажа Толщина стены 146 мм. Покрытие биозащитным составом Стены 1-го этажа Толщина стены 146 мм. Покрытие биозащитным составом
Кровля Профлист C-20 (оцинкованный) Кровля Металлочерепица
Окна ПВХ Окна ПВХ
Двери Деревянные, глухие Двери Внутренние - деревянные, глухие. Входная - металлическая усиленная.
Обработка огнебиозащитой для дерева в 2 слоя Обработка огнебиозащитой для дерева в 2 слоя
Скидки на дополнительные опции 5% Скидки на дополнительные опции 10%
8 019 800 руб.
8 619 800 руб.
* действителен при покупке в комплектации "Теплый дом+", "Аляска", "4 сезона", "4 сезона+" и "Зимняя"
Более подробную информацию уточняйте у менеджеров по телефону +7 495 445-90-85 или на наших выставочных площадках.
Характеристики
  • Общая площадь: 109,61 м2
  • Площадь застройки: 123,85 м2
  • 2
    Санузла
  • 3
    Спальни

Выберите технологию

Выберите комплектацию

Цена
8 019 800 руб.
Цены в вашем регионе могут отличаться от представленных на сайте
Обратный звонок
* заполните обязательно